JAL Proyectos
MENÚ

634 405 889

PROYECTOS

Proyecto de reforma completa, decoración y acabados de bar-restaurante

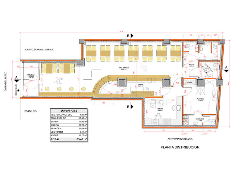
Se desarrolló el proyecto de reforma completa de un bar-restaurante con planta baja y entreplanta, cuyo histórico de múltiples inquilinos había generado diferentes reformas y modificaciones parciales que afectaban a la coherencia y funcionalidad del local. Ante esta situación, la propiedad decidió renovar por completo el establecimiento para mejorar su estética y eficiencia.

 

Tras un análisis técnico, se detectó que la entreplanta no cumplía con las condiciones mínimas de altura (normativa técnica de edificación), por lo que se decidió su demolición y la reestructuración integral del local, abarcando tanto la planta baja como la zona superior. Esto permitió optimizar los espacios, mejorar la circulación y actualizar todas las instalaciones.

 

Se procedió a redactar el proyecto de reforma completa, incluyendo un estudio de decoración, acabados y diseño interior, adaptando el espacio a las necesidades del negocio y a la normativa vigente. Tras la obtención de todas las licencias y permisos oficiales, se ejecutaron las obras.

 

La intervención contempló el derribo total de la tabiquería interior, la entreplanta, revestimientos, falsos techos, instalaciones y pavimentos, dejando el local completamente vacío para facilitar la reforma. A continuación, se realizó la insonorización integral del perímetro, techos y suelos, mejorando el confort acústico del local. Finalmente, se llevó a cabo el levantado de los nuevos tabiques, la instalación de redes técnicas y la ejecución de acabados y elementos decorativos, siguiendo el diseño definido en el proyecto.

JAL Proyectos Obra Bar Restaurante
JAL Proyectos Obra Bar Restaurante
JAL Proyectos Obra Bar Restaurante
JAL Proyectos Obra Bar Restaurante
JAL Proyectos Obra Bar Restaurante
JAL Proyectos Obra Bar Restaurante
JAL Proyectos Obra Bar Restaurante
JAL Proyectos Obra Bar Restaurante